...

Wash Off

Sparkler® Wash-Off Horizontal Plate Filter (WO)

Easy Cleaning when Ergonomics/Chemistry Allow Pressure Wash Style Setup

Introducing the Sparkler® Wash-Off Horizontal Plate Filter (WO)—an adaptive filtration solution engineered for applications benefiting from quick and efficient cleaning. Designed with user convenience and operational efficiency in mind, the Wash-Off Filter minimizes downtime and ensures seamless operations for industries handling frequent process changes or processes requiring wash conditions.

wash off poster image
Sparkler LoopWave
left logo heading

Key Features

right logo heading
Versatile and Customizable Construction image

Offered in carbon steel, stainless, or Hastelloy for chemical compatibility. Accepts filter media like wire mesh, bags, and synthetics to match your process needs.

Versatile and Customizable Construction

Efficient Wash-Off Design: image

Integrated wash-off system cleans filter plates quickly, minimizing downtime and labor. Suited for hygiene-critical industries and processes with sticky or reactive solids. Designed for washrooms with drains and pressure washers.

Efficient Wash-Off Design

Enhanced Sanitation and Cleanability image
  • Designed for easy
    disassembly and operator
    friendly cleaning, with
    components such as filter
    plates, gaskets, and screens
    engineered for quick
    removal and replacement,
    ensuring all internal
    components are accessible
    for thorough cleaning.

Enhanced Sanitation and Cleanability

Operational Efficiency image
  • Compatible with
    diatomaceous earth
    precoats to achieve micron
    efficiencies under 0.5
    micron (optional).
  • Minimal liquid retention
    ensures optimal product
    recovery and efficient
    operation.

Operational Efficiency

left logo heading

Photo Gallery

right logo heading
left logo heading

Simple Parts List Drawings

right logo heading

Filter:

1. Filter Cover


2. Filter Tank
3. Filter Mounting (Portable Option)

Filter Cartridge:

4. Filter Plates
5. Plate Screen
6. Scavenger Plate (Optional)

Compression Hardware:

7. Swing Bolt Closure Rod
8. Side Tie Rod
9. Center Tie Rod
10. Compression Cap with Litting Eye
11. Cartridge Compression

Miscellaneous:

Gaskets : 11/12/13
12. Air Vent
13. Pressure Gadge

Ports:

14. Inlet
15. Outlet
16. Drain
17. Scavenger Outlet

The Sparkler@ Wash-Off Filter excels in industries where quick turnaround and operator-friendly protocols are critical. Common applications include:

Curious if we’ve handled your specific application? With decades of expertise, the answer is almost always “yes.” Contact us today to discuss how the Sparkler® Wash-Off Filter can meet your needs.

  • Filter Sizes : Standard diameters include 18″ and 33″, with custom sizes available for unique process requirements.
  • Filter Media Compatibility : Suitable for various filter media types, including polypropylene and polyester bags or metal screens.
  • Capacity : Designed to handle filter areas from 6 ft² (0.77 ft³) to 100 ft² (14 ft³), depending on application needs.
  • Specification Options : Click here for a complete description of specifications and options.

Click here for detailed guidance and expert tips on planning single-filter projects — including auxiliary equipment, system configuration, and cost-saving insights. For multi-filter or continuous operation setups, click here to explore additional solutions.

left logo heading

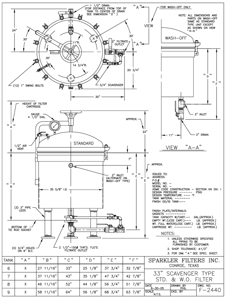
Dimensional Drawing

right logo heading
wash off dimension image

With nearly a century of expertise in manufacturing liquid filtration equipment, Sparkler® Filters is dedicated to delivering innovative solutions tailored to your specific needs. Our Wash-Off Filter exemplifies our commitment to quality, efficiency, and customer satisfaction, making it the trusted choice for industrial filtration.

about-us-image
left logo heading

Contact Us

right logo heading

For assistance in selecting the appropriate filter type or to discuss customization options for your application, please fill out our Application Data Sheet or Contact us directly at (936) 756-4471. Our team of experts is ready to provide the support and solutions you need.

Experience the unmatched ease of cleaning and reliability of the Sparkler® Wash-Off Horizontal Plate Filter—your trusted partner in industrial filtration.

Optional Finishes & Treatments
Standard Flow Precoat Bodyfeed
Dry Cake Discharge transport
Dry cake discharge container
Dry Cake Discharge Collection Tray
Dry Cake Discharge Filter Setup
Sparkler WCD system integrated with rotary drum filter for slurry separation.
Wet Cake Discharge connected to slurry tank and pump system for solids removal.
Wet Cake Discharge with Slurry Pit
Wet Cake Discharge filter setup
Mineral Recovery
Nutsche filter type